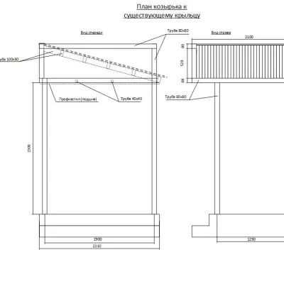
Лот №8937 Устройство козырька
До окончания лота осталось:

427960, Удмуртская республика, г. Сарапул, ул. Оранжерейная, зд. 2, ИНН 1838022798, КПП 183801001
Дата начала сбора предложений: 18.08.2025 08:20:00
Дата фактического закрытия лота: 19.08.2025 09:02:56
Часовой пояс: Самарское время (МСК+1)
Срок поставки: 10 календарных дней
Валюта: Российский рубль, ₽ (RUB)
Условия поставки: Доставка силами и за счет Поставщика на склад Покупателя — 427960, Удмуртская Респ, г Сарапул, ул Оранжерейная, д 2
Условия оплаты: C отсрочкой платежа — C отсрочкой платежа : Оплата товара (услуг) 100% в течение ___14__ кал. дней после получения товара в полном объеме согласно спецификации (подписания акта выполненных работ)
Аналоги: Исключается возможность указания аналогов в спецификации
Спецификация: Требуется заполнение всех позиций спецификации
